このページを印刷する
- 賃料
-
26.5万円
- 管理費等
- --
- 敷金
- --
- 礼金
- --
- 保証金
- 6ヶ月
- 償却・敷引金
- 50%
- 更新料
- --
| 所在地 | 三重県桑名郡木曽岬町大字西対海地 |
|---|---|
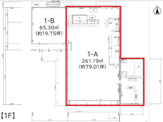
| 建物名 | 木曽岬町貸店舗・貸事務所 1-A |
| 交通 |
|
| 築年月 | 1983年9月(築42年2ヶ月) | 新築/中古 | 中古 |
|---|---|---|---|
| 面積 | 261.19m²(79坪) | 計測方式 | 壁芯 |
| バルコニー | 向き | 南 | |
| 建物階数 | 地上2階 | 所在階 | 1階 |
| 部屋番号/区画番号 | 1A | 総戸数/総区画数 | --- |
| 建物構造 | 鉄骨造 | ||
| 間取内容 | |||
| 駐車場 | あり | 取引態様 | 仲介 |
| 引渡/入居時期 | 相談 | 現況 | 空家 |
| 地目 | 宅地 | 用途地域 | 第二種住居 |
| 都市計画 | 市街化区域 | 地勢 | 平坦 |
| 土地面積 | 1930.19m²(583.88坪) | 土地面積計測方式 | 公簿 |
| 建ぺい率 | 60% | 容積率 | 200% |
| 土地権利 | 所有権 | 接道状況 | 三方 |
| 接道方向1 | 南 | 接道間口1 | 35.6m |
| 接道種別1 | 公道 | 接道幅員1 | 8.0m |
| 接道方向2 | 西 | 接道間口2 | 53.3m |
| 接道種別2 | 公道 | 接道幅員2 | 6.5m |
| 周辺環境 | ・ファミリーマート木曽岬町店:徒歩23分 約1,800m ・タチヤ木曽岬店:徒歩27分 約2,100m ・木曽岬町役場:徒歩1分 約80m ・木曽岬郵便局:徒歩4分 約270m ・木曽岬町立木曽岬小学校:徒歩1分 約2m ・木曽岬町立木曽岬中学校まで徒歩18分 約1,400m |
||
| 設備・条件 |
・22条区域
・ポール看板あり
・現況渡し
|
||
| 物件番号 | 10235-1A | ||
◇◇飲食店の出店を募集しています◇◇
木曽岬町役場徒歩1分。周辺は企業が多い立地です。ワーカー層の集客が見込めます。
◆ミニスーパー跡地。業務用冷蔵冷凍庫、厨房設備あり。
◆敷地内駐車場あり
2階部分も同時契約可能です。
お気軽にお問合せください。
物件掲載内容と現況に相違がある場合は現況を優先といたします。
物件周辺マップ
Loading...
ご注意
- 物件によっては正確な位置を示していない場合がございます。
- 現況が表示された内容と異なる場合は現況優先といたします。
- 表示されてる地図はGoogle社より提供されてるデータに基づいたものであり、表示内容についての責任は負いかねます。











