このページを印刷する
- 価格
-
2,990万円
- 間取
-
4LDK
| 所在地 | 愛知県弥富市平島東3丁目 |
|---|---|
| 交通 |
|
| 築年月 | 2025年3月(築1年) | 新築/中古 | 新築 |
|---|---|---|---|
| 面積 | 98.25m²(29.72坪) | 計測方式 | 壁芯 |
| バルコニー | 向き | ||
| 建物階数 | 地上1階 | 所在階 | |
| 部屋番号/区画番号 | --- | 総戸数/総区画数 | 1戸 |
| 建物構造 | 木造 | ||
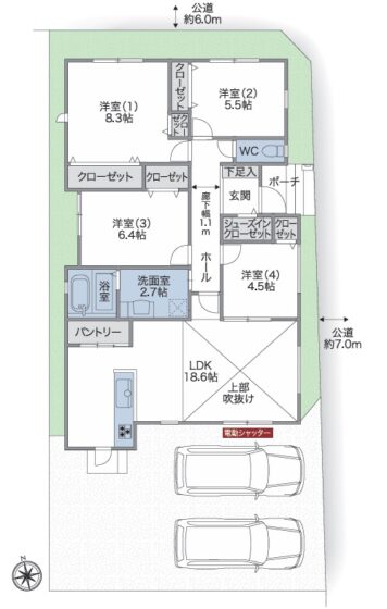
| 間取内容 | LDK18.6帖 1室洋室8.3帖 1室洋室6.4帖 1室洋室5.5帖 1室洋室4.5帖 1室 | ||
| 駐車場 | 2台 |
取引態様 | 仲介 |
| 引渡/入居時期 | 相談 | 現況 | 空家 |
| 地目 | 宅地 | 用途地域 | 第一種住居 |
| 都市計画 | 市街化区域 | 地勢 | 平坦 |
| 土地面積 | 182.00m²(55.05坪) | 土地面積計測方式 | 公簿 |
| 建ぺい率 | 60% | 容積率 | 200% |
| 土地権利 | 所有権 | 接道状況 | 角地 |
| 接道方向1 | 北 | 接道間口1 | |
| 接道種別1 | 公道 | 接道幅員1 | 6.0m |
| 接道方向2 | 東 | 接道間口2 | |
| 接道種別2 | 公道 | 接道幅員2 | 7.0m |
| 周辺環境 | セブンイレブン弥富六條町店:徒歩6分(約450m) Yストア佐古木店:徒歩24分(約1800m) ドン・キホーテUNY十四山店:徒歩18分(約1400m) ゲンキー平島五反割店:徒歩10分(約800m) 弥富市立日の出小学校:徒歩18分(約1400m) 弥富市立弥富中学校:徒歩27分(約2100m) |
||
| 設備・条件 |
|
||
| 物件番号 | 20045 | ||
□平家建て
□耐震等級3
□食洗機・リビング電動シャッターなど設備充実
◆住宅性能評価取得(設計・建設)
◆ZEH基準の断熱仕様
◆収納豊富 パントリー付
◆耐久性の強いガルバリウム鋼板屋根
◆断熱性にすぐれた発砲ウレタン吹付断熱
お客様のご都合に合わせてご案内させて頂きます。お気軽にお問い合わせください。
物件掲載内容と現況に相違がある場合は現況を優先といたします。
物件周辺マップ
Loading...
ご注意
- 物件によっては正確な位置を示していない場合がございます。
- 現況が表示された内容と異なる場合は現況優先といたします。
- 表示されてる地図はGoogle社より提供されてるデータに基づいたものであり、表示内容についての責任は負いかねます。











